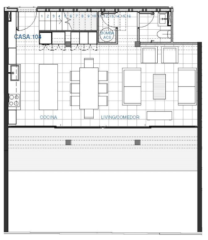
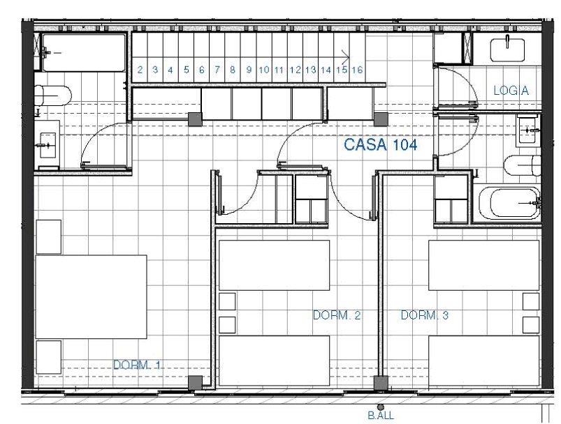
Diseño, ubicación y calidad en cada m². Construcción en madera que aporta confort y sostenibilidad.
3D+2B
Desde
108 a 132
m2 interiores
47 a 74
m2 de patio
1
Est. en subterráneo + bodega
2D + 1B
Desde
50 a 75
m2 interiores
20 a 42
m2 de patio
1
Est. en subterráneo + bodega
Barrio de casas en calle interior tranquila y segura en Providencia. cerca de Metro, parques, comercio y servicios.
14 unidades en edificio de 3 pisos más azotea. Seguridad y accesos controlados.
Certificación de eficiencia energética. Bajos gastos comunes, tasas preferentes, hipotecarios verdes.
Edificación de baja huella de carbono, con alta eficiencia térmica, control solar y calidad del aire interior. Y un beneficio directo para ti: acceso a financiamiento bancario con tasas preferentes y mayores plazos, además de cuentas más bajas.
Bodegas en subterráneo
Patio común interior
Opción de paneles solares













